农村三层半小别墅设计图图片
的有关信息介绍如下:农村三层半小别墅设计图图片
好的,四周采光如何?
每个人地皮不同,要求不同。不可能通用的。
现在农村建房的人越来越多,施工水平也跟着改进了不少。以前农村建房都是请木工、水泥工和石匠,生意多的时候他们还不一定会接活。现在都是组建了施工队,图纸什么的也渐渐的会看了,发展也是很快,回农村建房也是挺好的。话不多说,接下来我们就一起来看看今天的这款三层你农村别墅吧。
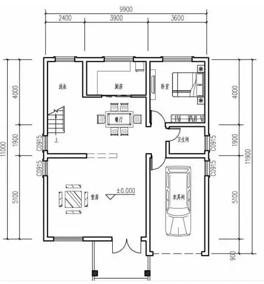
开间:11.7米,进深:11.1米,占地面积:130.04平方米,建筑面积:336.44平方米,框架结构;主体参考造价38万左右。

此户型为框架结构的三层农村别墅,从外观上来看,别墅整体采用了三种色调,使整体清新明快。多窗的设计,既增加了整体通风采光的效果,又使得别墅整体更加的通透有质感。

户型平面图

一层设有挑空客厅、厨房、餐厅、洗衣房、卫生间和两间卧室。入户后左侧就是客厅,既避免了开门见山,又方便及时招待客人。南向卧室采光好,有利于身体健康,适合老人居住。


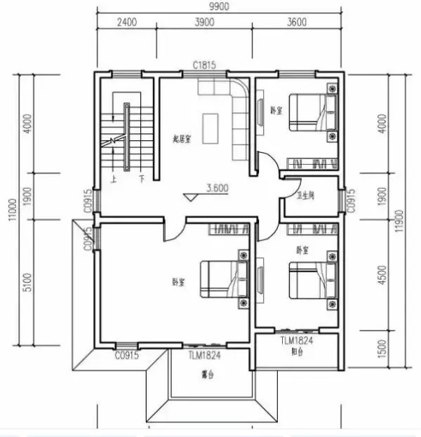
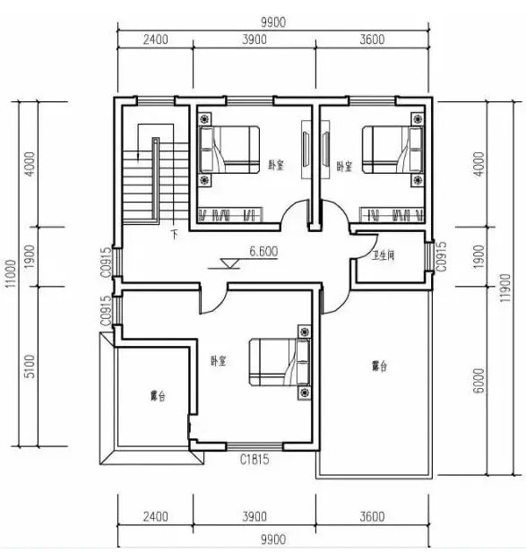
二三层共设有五间卧室,其中主卧带有独立的卫生间,充分的保护了个人的隐私习惯。还设有休闲区、客厅、露台,既方便家人之间的互动交流,又匥晾晒东西,丰富了起居生活。且别墅上下水结构对齐,降低了整体的施工难度,适合广大农村地区建造。
农村别墅设计 进宽10米,长15米,三层半图纸设计全套要多少钱?
订制的话少不了几千大洋了,要是能找到合适的成品图纸哪是最好不过了,成品图纸便宜,百度下我要盖房网 有成品图纸也可以订制设计
农村三层别墅图纸设计一般要多少钱
如果找到现成的图纸,可以参考,花不多少钱的,找设计师设计的话,价钱就比较多了
求农村自建别墅三层半宽8米深15米设计图纸
一层是客厅、餐厅(可以的话,分别作一大一小的餐厅)、厨房、卫生间、老人房,二层是2间卧室、卫生间、过厅兼小客厅(可有可无),三层可以设主卧,采用框架结构,可以的花,想使用L字形柱子,房间、餐客厅不想看到阴阳角,厨卫就无所谓。化粪池已定位,前面留做院子,后面一个独立厨房,方便过节请客。
望采纳,谢谢!
农村3层别墅房屋设计效果图和建筑图

设计功能:
一层设有老人房、餐厅、客厅、厨房、洗衣间、卫生间、门厅、车库;
二层设有主卧、书房、三个次卧、卫生间;
三层设有三个次卧、卫生间。



9.5米X13米三层半别墅外观设计图纸
外立面设计图是根据平面设计图来的哟,所以首先要先设计平面功能图,你一层需要车库吗,一层功能可以一个老人房,客厅,餐厅,厨房,卫生间,二层三间卧室一个家庭厅,三层主卧配书房



