昆明刚买的二手房,88万还白送一个大露台,赚翻了!
的有关信息介绍如下:
今年4月终于在昆明的西山区买了一套二手房,86平88万,首付50万,剩下的5年内付清。纠结了很久要买新房还是二手房,最终还是选择了买二手房。主要是房子周围有很多好的小学,上班的地方也多,为了孩子值得。这套房子装修不算太旧,还有一个大露台,超级喜欢~
【客厅】

电视背景墙很简单,但是隔板的设计很实用。白色的茶几和凳子可以分离,还蛮不错的。
【餐厅】

由于面积小,所以餐桌椅就放在客厅的沙发旁。等入住了要中心布置一下。

很喜欢阳台的落地窗,阳光照进来暖暖的。
【卧室】

这些家具都比较旧了,到时候要全部重新买了再稍微装修下。
【露台】

最喜欢的就是这个房子的露台了,面积超大,好好设计的话就能做成小花园~

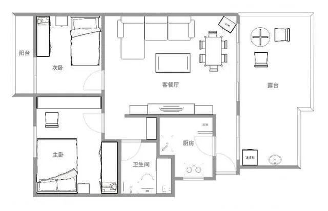
【户型图】
还算规整,总之感觉这个露台真是赚大了~

长按识别二维码,免费领取平面设计方案!
如果你在昆明有房子要装修,欢迎联系博若森家装顾问:18669202548
更多装修案例,欢迎关注微信公众号【云南博若森装饰】!(图源网络,侵删)
-以上-
我是小博
一个集装修、家居、建材才华
于一身的女子
长按识别下方二维码
一起装饰温暖的家
装修认真,就选博若森
什么,装修还用自己的钱?!齐家装修分期,超低年利率3.55%起,最高可贷100万。立即申请享受优惠



